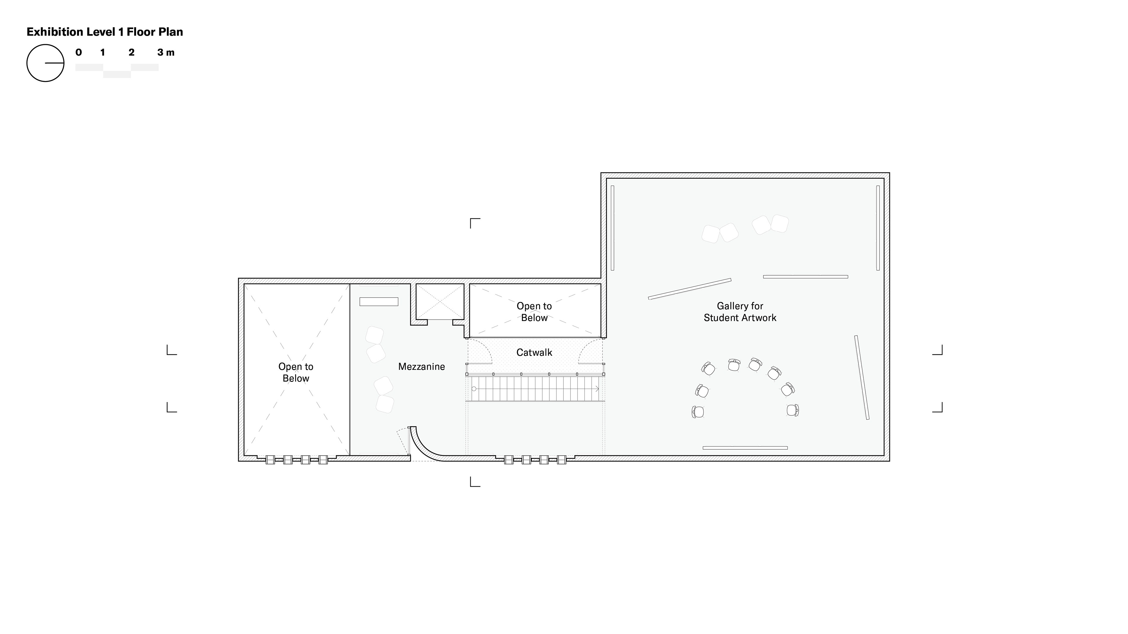
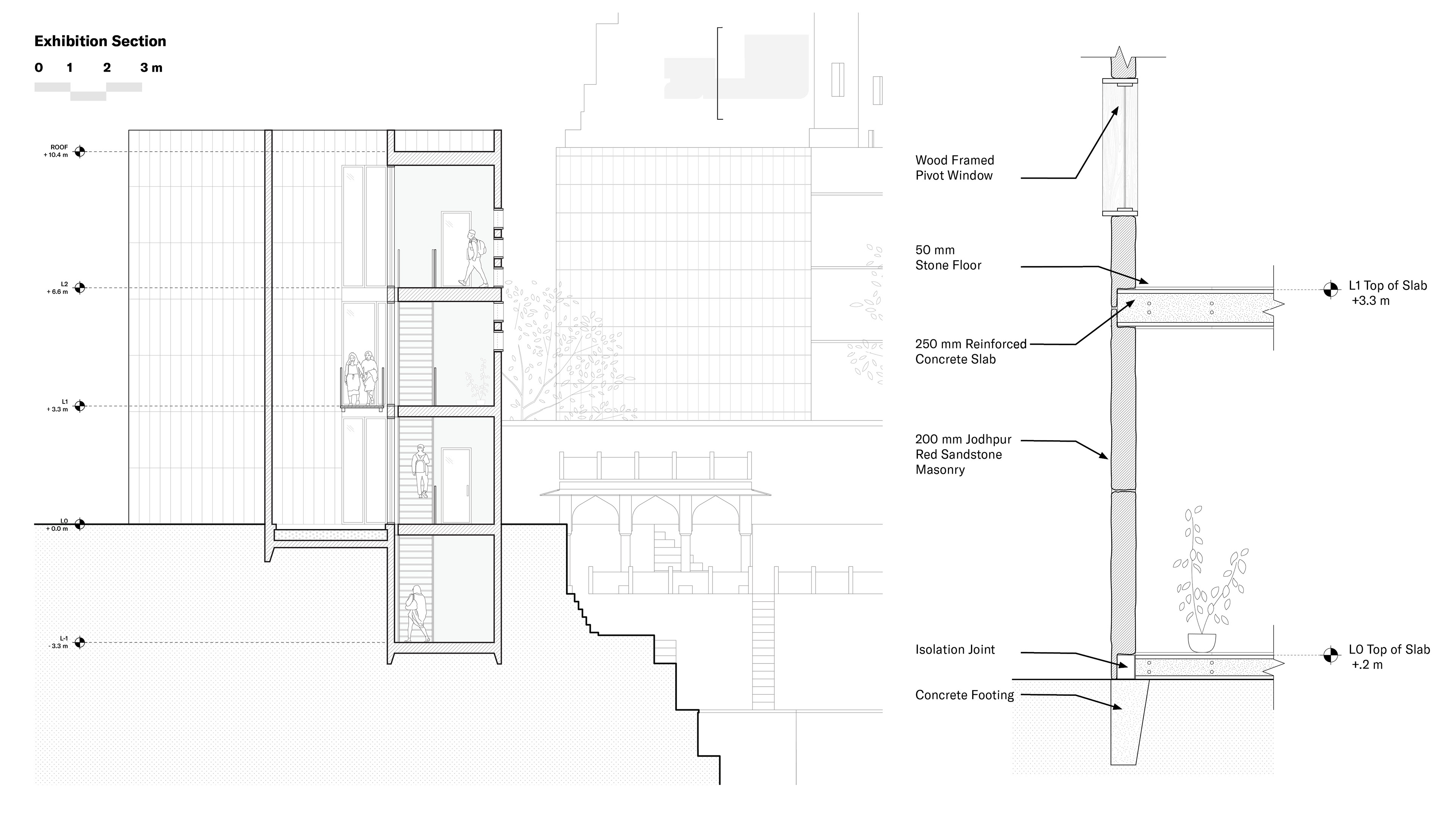
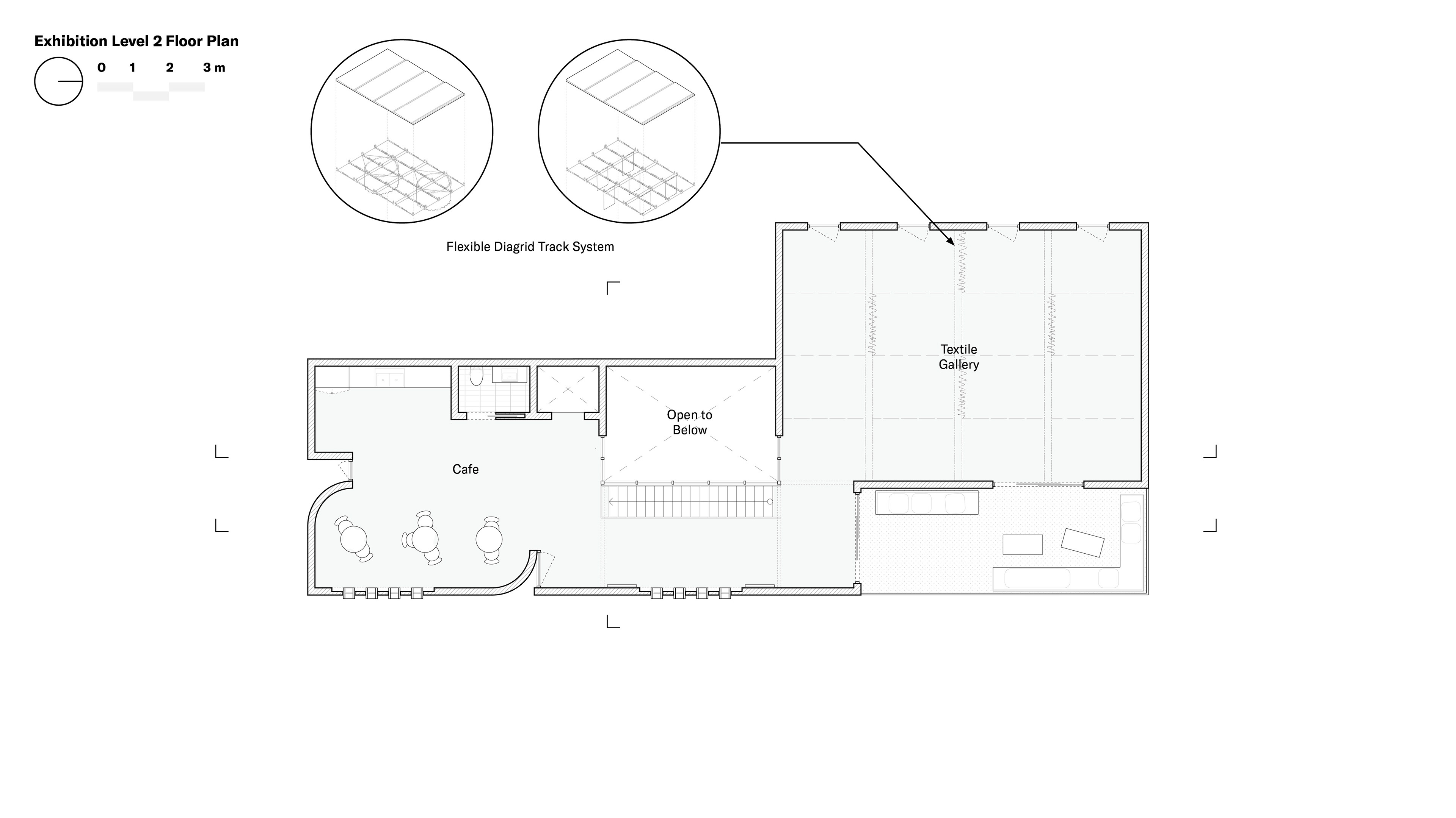
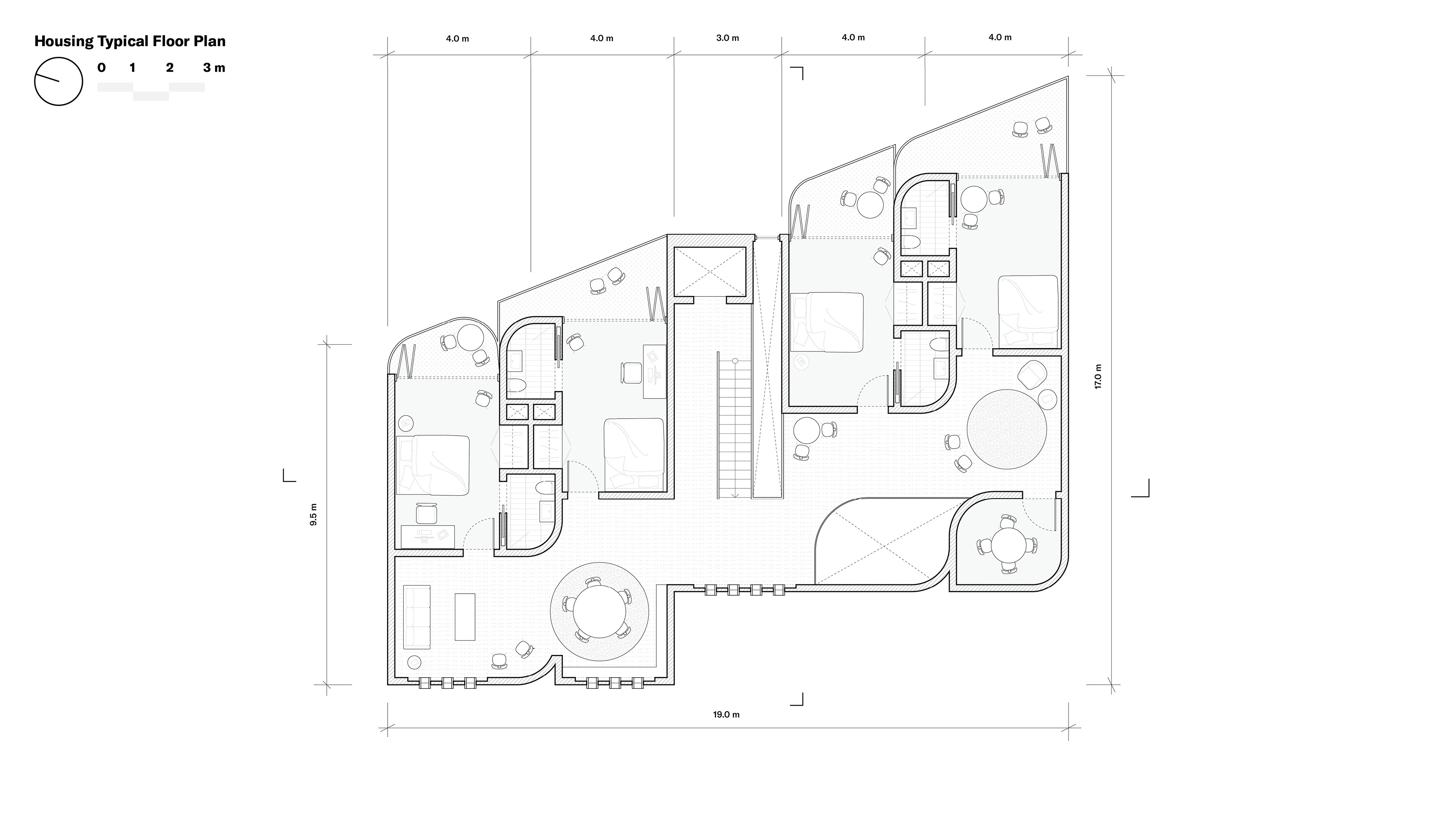
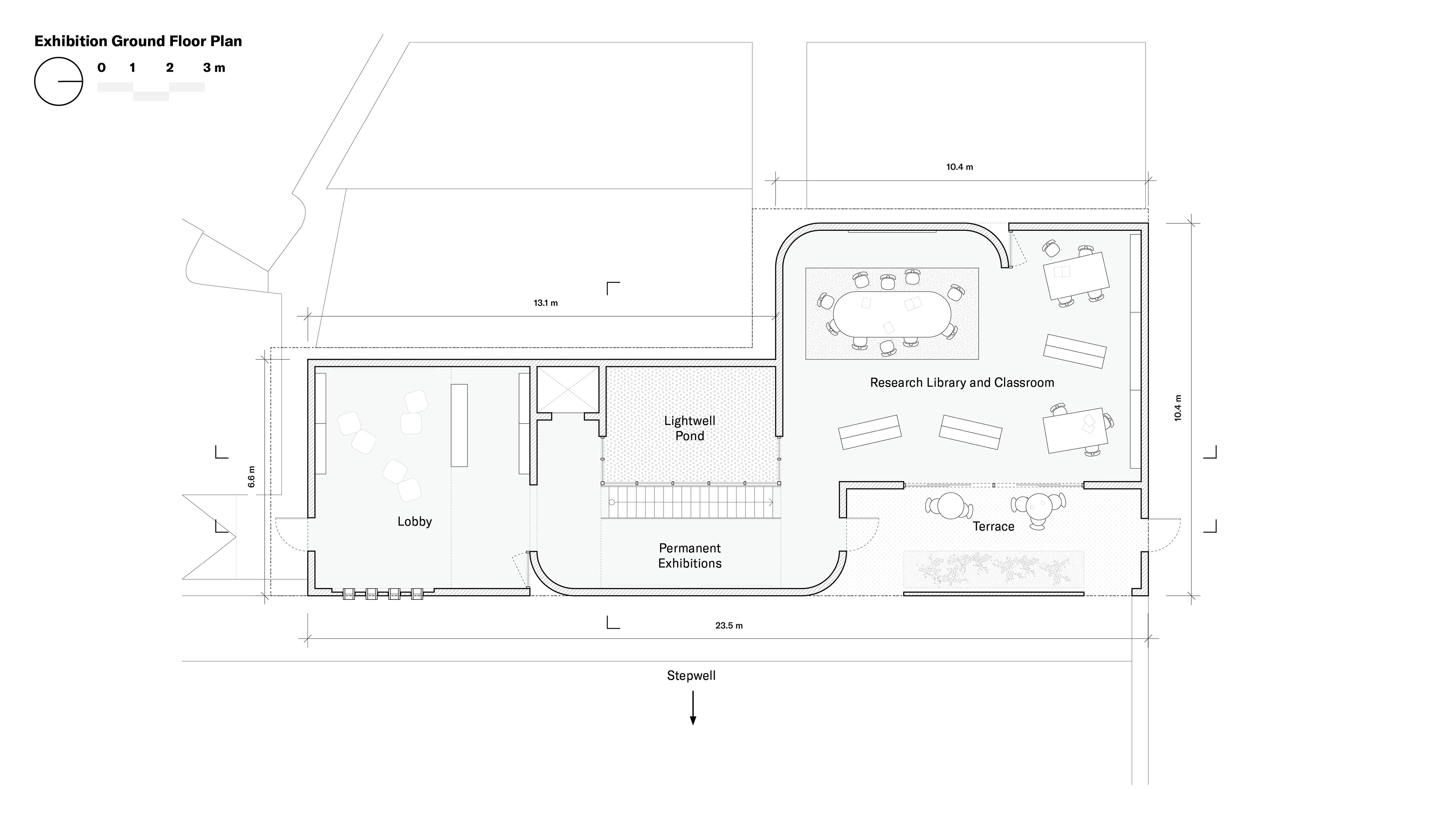
The Blue Institute in Jodhpur
601 Studio, Rice School of Architecture Taught by Troy Schaum, Fall 2022 Partner Project with Emma Brown and Paul DeFazio Received AIA Fort Worth Honor Award for Excellence in Architecture
601 Studio, Rice School of Architecture Taught by Troy Schaum, Fall 2022 Partner Project with Emma Brown and Paul DeFazio Received AIA Fort Worth Honor Award for Excellence in Architecture